
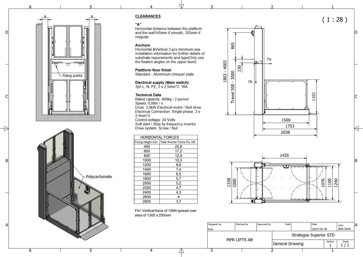
The lift is hot-dip galvanized as standard (can also be powder coated in any RAL color). Stainless steel version is available as an option. It is reliable, easy to maneuver and reliable. Made for outdoor as well as for indoor use. Pit is not needed. CE marked. Type certified by Inspecta. Easy attachment to the wall and the stand placed on a solid and non-frost-shooting surface. Mounting on freestanding stand as an alternative (lifting height between 500-3000mm). Safety plate under the elevator car provides great reliability and prevents accidents. Hand crank at ev. power outages, alt. Oops. Sides and doors are made of impact-resistant safety glass. Standard design on the floor aluminum floorboard but can be used with other substrates (carpet) according to specifications.

